Umbau

Largitzenstrasse

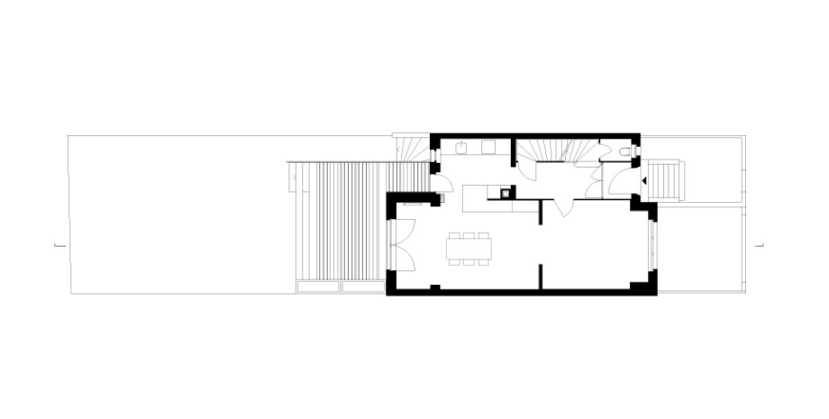
Die Aufgabe des Umbaus Largitzenstrasse bestand darin, ein Reihenhaus aus den 30er Jahren mit nur wenigen gezielten Eingriffen den Bedürfnissen und dem modernen Wohnstil einer vierköpfigen Familie anzupassen.

Die Küche und das Esszimmer mit neuem Cheminée bilden dabei den Mittelpunkt des Familienlebens. Die beengten räumlichen Verhältnisse der bestehenden Küche wurden durch einen Durchbruch zum Essbereich hin verbessert. Die auskragende Arbeitsplatte lässt sich beidseitig nutzen und lässt so den Koch- und Essbereich nahtlos ineinander übergehen. Zwischen der Arbeitsplatte und einer Sitzbank spannt sich das Cheminée auf. Durch eine neue doppelflüglige Türe gelangt man nun direkt vom Essplatz auf die grosszügig angelegte Terrasse. Im Sommer erweitert sich der Wohnraum der Familie so bis in den Garten. Alle neuen Elemente im und am Haus wie die Küchenabdeckplatten, Cheminée und Terrasse wurden aus vorfabrizierten Betonteilen gefertigt. Dadurch konnte eine feine Oberflächenstruktur erzielt werden. Die  Eingriffe lassen sich zudem leicht ablesen und fügen sich gleichzeitig harmonisch in das Gefüge des Altbaus ein.

 

Realisiert Basel 2017 Superdraft Studio